物件情報
管理物件詳細
Property detail
- 所在地
- 大阪市東淀川区東中島一丁目
- 交通
-
JR東海道・山陽本線「新大阪」徒歩4分
大阪メトロ御堂筋線「新大阪」徒歩7分
JR東海道新幹線「新大阪」徒歩4分
- 構造
- 鉄筋コンクリート造 地上10階建
- 築年数
- 令和1年7月
- 間取り/専有面積
- 1LDK / 34.52㎡
- 契約期間
- 1年間(自動更新)
- 保険加入
- 要(家主指定有)
- 水道代
- 実費
- 駐輪場
- 自転車用:18区画/スライドラック式
- 駐輪場代
- スライドラック式:300円/月
- 駐車場
- 無
- バイク置き場
- 無
- 条件
- 指定の火災保険・保証会社加入要
-

間取り図面
-

居室(B-TYPE)(偶数階)
-

居室(B-TYPE)(奇数階)
-

廊下
-

ニッチ
-

クローゼット
-

キッチン
-

キッチン ダウンスポットライト
-

洗濯パン
-

洗面化粧台
-

シューズクローク
-

浴室
-

トイレ
-

仕上表(偶数階)
-

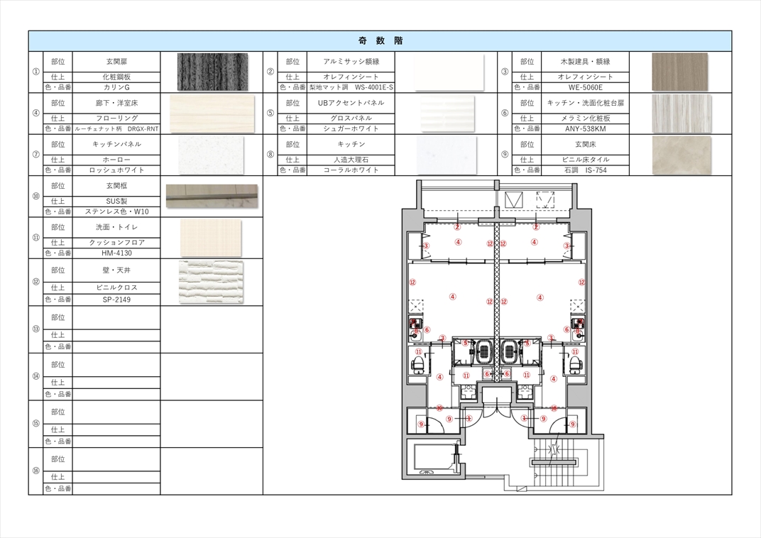
仕上表(奇数階)
画像をクリックすると大きく拡大されます。